双深位单电机轻型伸缩货叉
- 分类 : 伸缩货叉
- 关键词 : 双深位伸缩货叉,单电机轻型货叉,智能仓储伸缩货叉,双深位单电机轻型伸缩货叉
- 更新时间 : 2025-08-22 14:25:44
- 产品详情
在自动化立体仓库的精准作业中,双深位单电机轻量化伸缩货叉是堆垛机的核心执行机构。它凭借“四段叉体+单电机驱动”的创新设计,实现了高密度存储与轻量化运行的完美平衡。其独特的结构与功能特性,使其成为现代智能仓储、冷链物流、新能源制造等领域的“空间魔术师”。
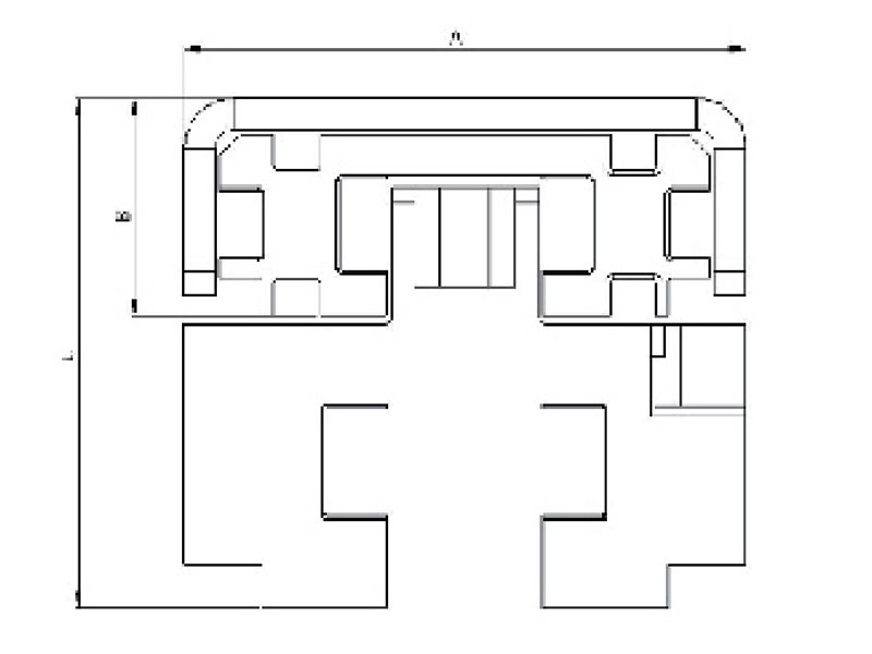
一、结构设计:四段叉体与单电机的精准协作
双深位单电机轻型伸缩货叉采用“上叉体-上中叉体-下中叉体-下叉体”的四段叉体叠合结构,通过齿轮齿条与链轮链条的复合传动系统,在单电机驱动下实现三级伸缩。其中,下叉体与载货平台固定,下中叉体在电机驱动下向外移动自身长度的50%-60%;上中叉体从下中叉体中点继续延伸,最终由上叉体完成双深位(叉体长度的2倍)的精准定位。
核心设计亮点
- 轻型材料:上叉体采用25MnV高强度合金钢,中、下叉体采用42CrMo锻钢。在保证抗弯曲性能的同时,通过结构优化将自重降低15%-20%,适配轻量化堆垛机设计需求。
- 单电机驱动系统:集成减速器、联轴器与编码器,通过扭矩限制器实现过载保护。相较于双电机方案,传动效率提升8%,能耗降低12%。
- 模块化导向系统:采用IKO/KIS品牌滚动轴承与聚四氟乙烯(PTFE)导向滑块,摩擦系数低至0.05,重复定位精度可达±0.1mm。

二、应用场景:破解高密度存储难题
1. 智能仓储领域
在电商物流中心,双深位货叉可同时服务前后两排货架,将通道宽度从传统单深位的1.8米缩减至1.2米,存储密度提升40%。以某跨境电商仓库为例,应用该技术后,单位面积存储量从3.2个托盘/平方米提升至4.5个托盘/平方米。
2. 冷链物流场景
在-25℃的低温环境下,货叉通过不锈钢材质与低温润滑脂的组合,实现2000小时连续无故障运行。某冷链企业应用数据显示,其托盘周转效率提升35%,能耗成本降低18%。
3. 新能源制造行业
在动力电池模组搬运中,货叉搭载SEW伺服电机与TR-ELECTRONIC编码器,可实现0.1mm级微调控制,满足电芯对齐精度要求。某动力电池工厂实测数据显示,单个模组的生产周期从45秒缩短至32秒。
三、核心优势:四大维度突破行业瓶颈
1. 空间利用效率最大化
双深位设计使单通道存储量翻倍,结合堆垛机高速运行(空载240米/分钟、满载180米/分钟),仓库空间利用率提升至85%以上。
2. 轻型与承载能力的平衡
通过拓扑优化设计,货叉在自重降低15%的同时,仍可保持1.5吨额定载荷,满足轻工业品、电子元器件等行业的搬运需求。
3. 能耗与成本双重降低
单电机方案相较双电机系统,能耗降低30%,维护成本降低25%。按年运行8000小时计算,单台设备每年可节省电费高达1.2万千瓦时。
4. 智能集成能力
货叉可与WMS(仓库管理系统)/WCS(仓库控制系统)无缝对接,通过条码识别与视觉定位技术实现“货到人”精准交付。某3C电子工厂应用中,分拣准确率达99.997%。

四、工作原理:机械与电控的完美配合
1. 伸缩运动控制
电机驱动下,齿轮齿条带动下中叉体伸出,通过链轮链条实现上中叉体与上叉体的同步延伸。编码器实时反馈位置数据,PLC控制器动态调节电机转速,确保三级伸缩平稳衔接。
2. 负载自适应调节
扭矩限制器设定1.2倍安全系数,当负载超过1.8吨时自动触发保护机制;导向滑块采用自润滑设计,可承受200万次往复运动而无明显磨损。
3. 安全防护系统
配备欧姆龙(OMRON)限位开关与施耐德(SCHNEIDER)接近开关,形成双重行程保护。某汽车零部件仓库实测显示,其每万次作业故障率低至0.03次。

五、功能特性:重新定义搬运效率
1. 双向伸缩自由度
支持左右双向180°无限伸缩,结合堆垛机X/Y/Z三轴运动,可覆盖仓库内任意存储位。
2. 动态挠度补偿
通过有限元分析优化货叉结构,在1.5吨满载工况下,挠度控制在3mm以内,确保托盘平稳搬运。
3. 快速切换能力
采用模块化设计,叉体长度可在1.2-3.6米范围内快速调整,适配不同规格托盘。某家电企业通过更换货叉组件,实现了从冰箱到洗衣机的柔性生产切换。
4. 强化环境适应性
防护等级达IP65,可在粉尘浓度≤10mg/m³、湿度≤95%的环境中稳定运行。某化工原料仓库应用中,其防腐涂层使用寿命已超8年。
结语
双深位单电机轻型伸缩货叉的演进,本质是机械工程与智能控制的深度融合。它不仅解决了高密度存储与轻量化运行的矛盾,更通过模块化设计与开放接口,为工业4.0时代的柔性制造提供关键基础设施。随着AI算法与数字孪生技术的渗透,这位“空间魔术师”将持续刷新智能仓储的效率边界。
在线留言
- 相关案例
-
半导体行业智能化立体仓库解决方案智能化立体仓库解决方案旨在提高半导体产品的存储效率、降低运营成本,并确保产品的质量和安全。该方案通过集成堆垛机、自动化输送系统、智能货架、仓库管理系统(WMS)等关键组件,实现货物的快速存取、精准定位和高效管理。
-
四向穿梭车智能化立体仓库解决方案四向穿梭车智能化立体仓库解决方案融合硬件设备与智能系统,实现高密度存储、自动化作业,大幅提升空间利用率与效率,降低人工及运营成本,适配电商、制造等多行业,助力仓储数字化升级。
-
智驱货叉新变革:全场景伸缩货叉智能化系统解决方案全场景伸缩货叉智能化系统解决方案以 “感知 - 决策 - 执行” 闭环为核心,集成伺服驱动、多维度感知与 AI 算法,适配仓储、制造、冷链等多场景。实现毫米级定位、效率提升 30%-50%,兼具预测性维护与柔性适配,赋能物流供应链降本增效。
-
堆垛机单电机双深位伸缩货叉整体解决方案堆垛机单电机双深位伸缩货叉智能化方案,以单电机驱动降能耗、双深位设计提仓储密度,搭配智能控制与故障预测,适配电商 / 制造业 / 冷链,实现存储容量升 50%、能耗降 25%、故障停机减 90%,助力立体仓库高效运营。
- 相关新闻
-
11-14
2025食品行业仓储:单电机伸缩货叉解决方案单深位单电机伸缩货叉是食品行业仓储创新方案,单电机驱动双段伸缩,存取效率升 40%、故障率降 0.2% 以下、能耗减 30%。适配冷链 / 高温场景,IP65 防护 + 易清洁材质达食品卫生标准,±2mm 精度防包装破损。支持 WMS/WCS 集成,AI 优化货位、数字孪生预判故障,OEE 超 95%。助力食品企业提升仓储密度、降本增效,适配 “零库存” 转型需求。 -
10-27
2025自动化伸缩货叉:五大核心优势解析自动化伸缩货叉是工业 4.0 智能物流核心装备,可破传统物流痛点,实现空间适应性升 40%、毫米级精度(货损≤0.1%)、能耗降 20%-30%,覆盖多场景;2025 年全球市场达 56.85 亿美元,中国增速 45%,向 5G+、绿色化升级,推动物流设备进化。 -
10-27
2025双向伸缩叉安全细节:操作指南关键本文为自动化仓储、AGV及堆垛机等场景提供双向伸缩叉的完整操作指南,涵盖原理解析、标准化操作流程(含3大预检项、4类动态控制、2项收尾确认)、7大核心禁忌(如超载/带病运行/擅自改装等)、3类常见故障应急处理方案,并总结安全操作公式,助力企业规避风险、延长设备寿命、保障作业安全。 -
10-13
2025堆垛机伸缩货叉的设计思路本文聚焦堆垛机伸缩货叉设计,从负载、效率、定位精度、环境适配四大需求切入,拆解叉体、驱动传动等核心机械设计,详解伺服与 PLC 控制逻辑,涵盖仿真、测试等验证流程,指出轻量化智能化方向,为立体仓库设计供系统参考。

